Pfeil Icon

Wohnhaus D in Hamburg-Volksdorf

Neubau von einem Einfamilienhaus
Bauherr: privat
Fertigstellung: 2025
Wohnfläche: 197m2

Fotos: Architekten

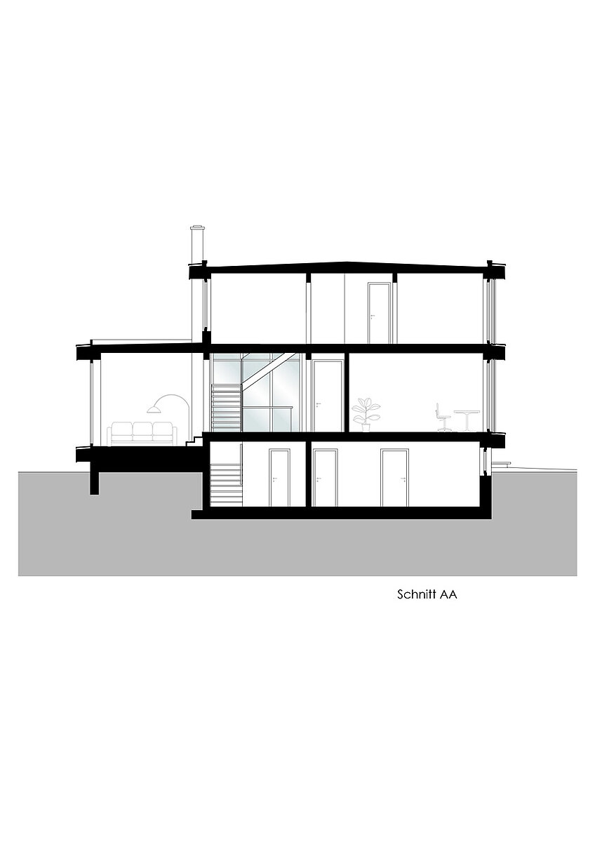
Das Einfamilienhaus in Hamburg-Volksdorf wurde in nachhaltiger Holzrahmenbauweise mit massivem Betonkeller errichtet. Der kompakte, klar gegliederte Baukörper vermittelt eine ruhige, selbstverständliche Architektursprache, die durch den präzisen Einsatz natürlicher Materialien zusätzlich gestärkt wird. 
Im Erdgeschoss entfaltet sich ein offener, lebendiger Grundriss. Der fließende Übergang zwischen Wohn-, Ess- und Kochbereich schafft Großzügigkeit, räumliche Tiefe und vielfältige Zonen für gemeinsames Leben. Das Wohnzimmer öffnet sich zur überdachten Loggia, einem geschützten Außenraum, der leicht über dem Garten zu schweben scheint und den Innenraum atmosphärisch erweitert. 
Tageslicht dient als leitendes Entwurfselement. Großzügige Fenster öffnen das Haus zum Garten und stärken den Bezug zur umgebenden Natur. Die Orientierung am täglichen und jahreszeitlichen Sonnenverlauf ermöglicht ein Wohnen in enger Beziehung zum wechselnden Spiel der Elemente. 
Ein zentrales zweigeschossiges Atrium verbindet das Erd- und Obergeschoss und dient als lichtdurchflutetes Herz des Hauses. Morgens scheinen die ersten Sonnenstrahlen in den Innenraum, während abends das warme Licht tief in den Wohnbereich wandert. Vor der hohen Glasfläche steht ein einzeln gesetzter Baum, der über den Tag ein lebendiges Wechselspiel aus Licht und Schatten erzeugt: Im Sommer spendet er kühlen Schatten, im Winter lässt er die tief stehende Sonne frei ins Haus eintreten. 
 

Der Entwurf orientiert sich an grundlegenden Feng-Shui-Prinzipien und fördert eine harmonische, ausgewogene Raumwahrnehmung.
Die Fassade ist in hellen, warmen Naturtönen verputzt und wird durch lasierte Holzlamellen-Felder gegliedert. Ein umlaufendes Gesims aus rotbraun vorpatiniertem Zink fasst den Baukörper und verleiht ihm eine feine, handwerklich präzise Kontur. Bewegliche Schiebeelemente dienen als Sonnen- und Sichtschutz, ohne die Sichtbeziehung zur Umgebung zu verlieren. Vertikal gesetzte Fensterflächen unterstützen die Fassadengliederung und betonen die ruhige Proportionierung.
Die filigranen Fensterrahmen aus hochwertigem Eichenholz sind sorgfältig gefertigt und mit UV-Klarlack geschützt, sodass die natürliche Maserung dauerhaft sichtbar bleibt. Innen prägen sichtbare Vollholzdecken, Holzträger und -stützen das räumliche Ambiente und unterstreichen die konstruktive Ehrlichkeit des Holzbaus.
Das Energiekonzept ist auf langfristige Nachhaltigkeit ausgerichtet: Eine Sole-Wasser-Wärmepumpe und eine Photovoltaikanlage auf dem Flachdach ermöglichen eine effiziente und weitgehend autarke Energieversorgung. Zusammen mit der ökologischen Holzrahmenkonstruktion und den, mit Lehmfarben gestalteten Innenwänden entsteht ein gesundes, und behagliches und ressourcenschonendes Wohnklima.